產品說明
CNS 15156-200 (IEC 62271-200) 高壓中置櫃
IEC 62271-200 & CNS 15156-200標準之高壓盤體採用內折雙折彎鉚接結構技術,簡潔與工業化的設計外觀,
精緻的鈑金加工工藝,極緻安全的連鎖機構,快速的安裝組合方式,抽出型電力器材,一致的併櫃尺寸,
可符合進口多種VCB及台製CT、PT 、LA等器材,此外銅匯流排皆由本公司一流的德國全自動化設備製造,
為電力系統提供更加安全的用電環境,是輸配電系統的首選方案。
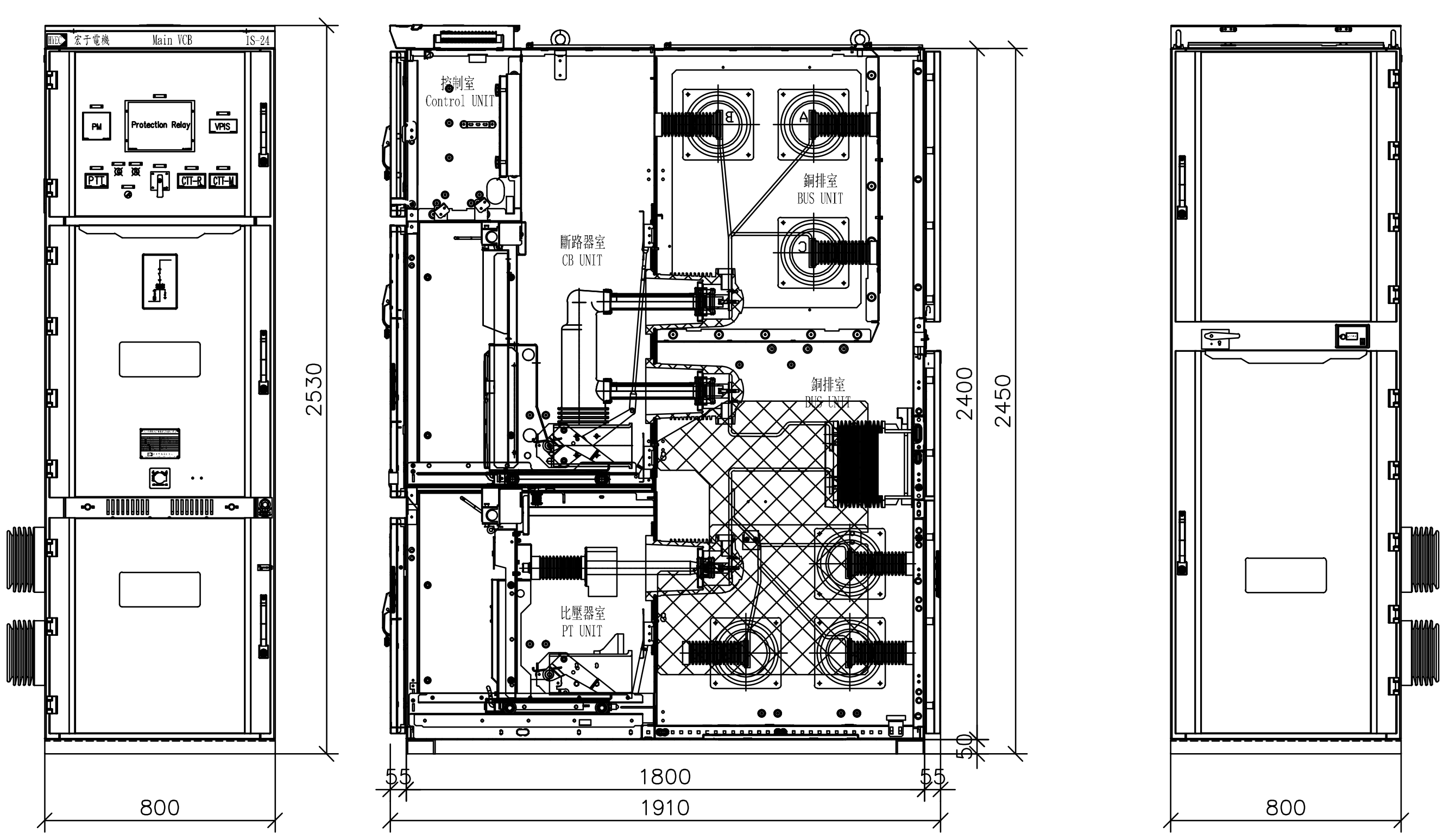
結構示意圖
盤體尺寸寬度最小可達800mm,有效縮小高壓變電站,提升城市建設容積率。
箱體採用鍍鋁鋅鋼板製造,達到CNS 15156-200要求之最佳接地連續性以保護人身安全。
主電路三個分隔室為 : LSC2B-PM 互鎖控制型
故障電弧等級(IAC)為:AFLR 24kV 25kA/0.5s
| 項次 | 特性項目 | 單位 | 規格參數 | |
| 1 | 額定電壓(Ur) | kV | 24 | |
| 2 | 額定電流(Ir) | A | 1250 | |
| 3 | 額定頻率(fr) | Hz | 50/60 | |
| 4 | 額定短時耐受電流(Ik) | kA | 25 | |
| 5 | 額定峰值耐受電流(Ip) | kA | 65 | |
| 6 | 額定短路持續時間(tk) | s | 3 | |
| 7 | 額定短時商頻耐受電壓(Ud) | kV | 50 | |
| 8 | 額定雷電衝擊耐受電壓(Up) | kV | 125 | |
| 9 | 防護等級(IP) | Class | IP 4X | |
| 10 | 額定電源電壓(Ua) | V | AC/DC 110 | |
| 11 | 內部故障電弧試驗 | 內部電弧等級 | Class | IAC |
| 可觸及性的類型 | Class | A類 F&L&R | ||
| 電弧試驗電流 | kA | 25 | ||
| 電弧試驗電流 持續時間 |
s | 0.5 | ||
| 12 | 運轉持續性失效類目 | LSC2B | ||
| 13 | 隔板之類型 | PM | ||
| 14 | 開啟外門型式 | 互鎖控制型 | ||
| 15 | 斷路器特性等級 (Schneider HVX) |
Class | E2 | |
| Class | C2 | |||
| Class | M2 | |||
| Class | S1 | |||
| 16 | 接地開關特性等級 (Nemie NE-24) |
Class | E1 | |
| Class | M1 | |||
| kA | 25 | |||
| s | 3 | |||
採用高強度鍍鋁鋅鋼鈑
進入無焊接時代
骨架採用鉚釘鉚接而成
板金進化內折雙折彎技術
加熱器全面採用鋁型直立式
獨立分隔室
安全接地開關
零組件標準化
銅排平偏扭轉導角
銅排局部搭接
減少烤漆環境汙染
體積減小提升變電站容積率
強制型連鎖機構:(符合CNS15156-200 5.11章節 互鎖裝置)
●可防止誤切、投斷路器
●可防止帶電時移動可移開部件
●可防止帶電時投入接地開關
●可防止接地開關處在接地位置時送電
●可防止誤入帶電隔間
●手動緊急解鎖裝置
●金屬活門掛鎖裝置
●斷路器操作孔掛鎖裝置
●接地開關操作孔掛鎖裝置
●專用型斷路器轉運台車











